
SZF/A
Idealna dla budynków istniejących
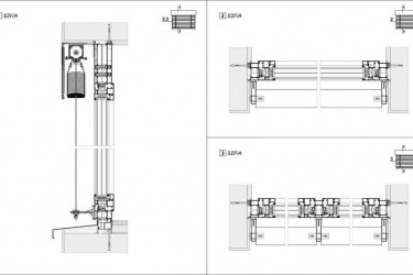
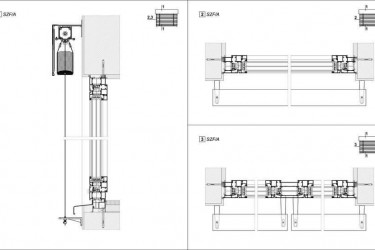
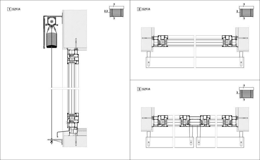
Nasza żaluzja adaptacyjna została stworzona z myślą o montażu na elewacji lub w wnęce okiennej w już istniejących budynkach. Kaseta osłonowa standardowo jest wykonana z trwałej blachy aluminiowej o grubości
1,2 mm i dostępna jest w czterech wariantach zabudowy. W przypadku potrzeby spełnienia szczególnych wymagań wytrzymałościowych, oferujemy także blachę o grubości 2,0 mm. Nasz system żaluzji występuje
w dwóch wersjach prowadnic: listwowych, dla których dostępne są uchwyty teleskopowe z opcją regulacji
oraz linkowych.
Dzięki zastosowaniu prowadnicy podwójnej istnieje możliwość podziału żaluzji, co daje więcej opcji projektowania. Jesteśmy jedynym producentem na rynku, który oferuje regulowany wewnętrzny łącznik do montażu narożnego, co gwarantuje bardzo estetyczne wykończenie.
Maksymalne wymiary to aż 4500 x 4000 mm, co sprawia, że nasza żaluzja adaptacyjna jest wszechstronnym i wysoce funkcjonalnym rozwiązaniem dla istniejących budynków.
Możliwość zabudowy
Ściana 1 warstwowa:







